Przeskocz do treści
NIEZWYKLY-DOM
To nie był zwykły dom…
Menu and widgets
BLOG
POŻAR
PO POŻARZE
ZRZUTKA
ODBUDOWA
EKSPERCI
PRAWO
DOKUMENTY
WSPOMNIENIA
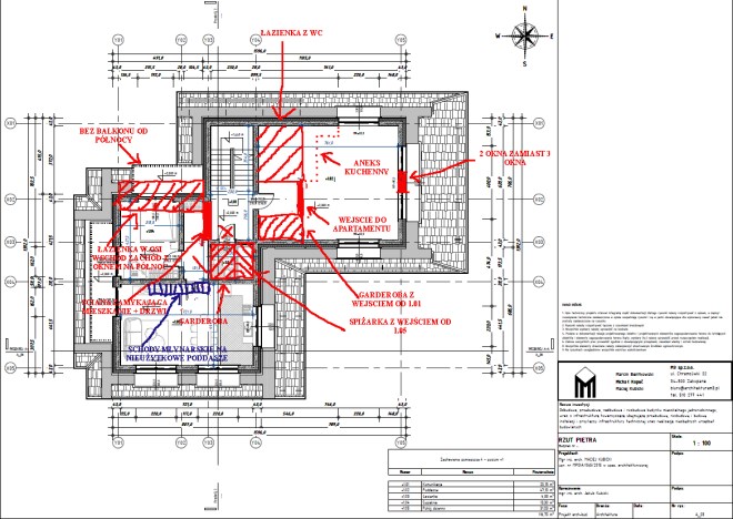
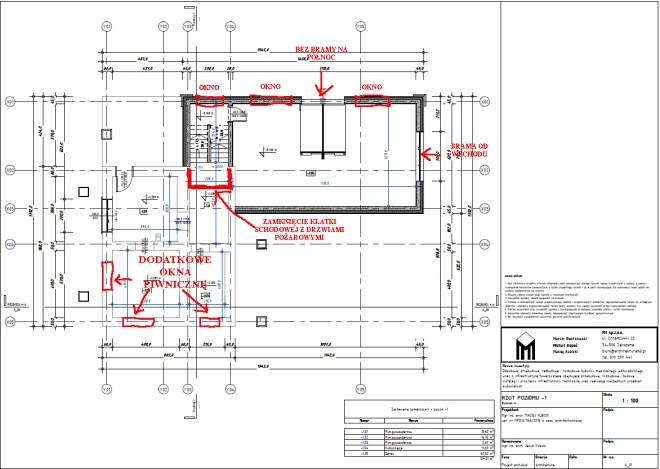
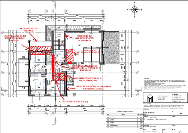
ODBUDOWA :: KONCEPCJA 1 :: UWAGI
Prywatność i pliki cookies: Ta witryna wykorzystuje pliki cookies. Kontynuując przeglądanie tej witryny, zgadzasz się na ich użycie. Aby dowiedzieć się więcej, a także jak kontrolować pliki cookies, przejdź na tą stronę:
Polityka cookies
NIEZWYKLY-DOM
Zarejestruj się
Zaloguj się
Kopiuj skrócony odnośnik
Zgłoś nieodpowiednią treść
Zarządzaj subskrypcjami
Wczytywanie komentarzy...
Napisz komentarz...
E-mail (wymagane)
Nazwa (wymagane)
Witryna internetowa